Без стереотипов: клиника А medclinic с интерьерами от Archistories | Источник: Женя Муравьева. Стиль: Катя Шаповалова
Фото

Женя Муравьева. Стиль: Катя Шаповалова

Может ли интерьер менять привычное сознание и воздействовать на окружающих? Я бесконечно верю, что да. Вместе с командой Archistories мы создали проект клиники, на наш взгляд разительно отличающийся от привычного представления о ней.

Лозунг клиники — «доказательно и душевно», и именно это ощущение мы старались передать в проекте. Нам кажется, что мы доказали то, что сегодня — клиника может быть комфортным, современным, уютным пространством.

Источник: Женя Муравьева. Стиль: Катя Шаповалова
Фото

Женя Муравьева. Стиль: Катя Шаповалова

Ковер, Kover.ru. | Источник: Женя Муравьева. Стиль: Катя Шаповалова

Ковер, Kover.ru.

Фото

Женя Муравьева. Стиль: Катя Шаповалова

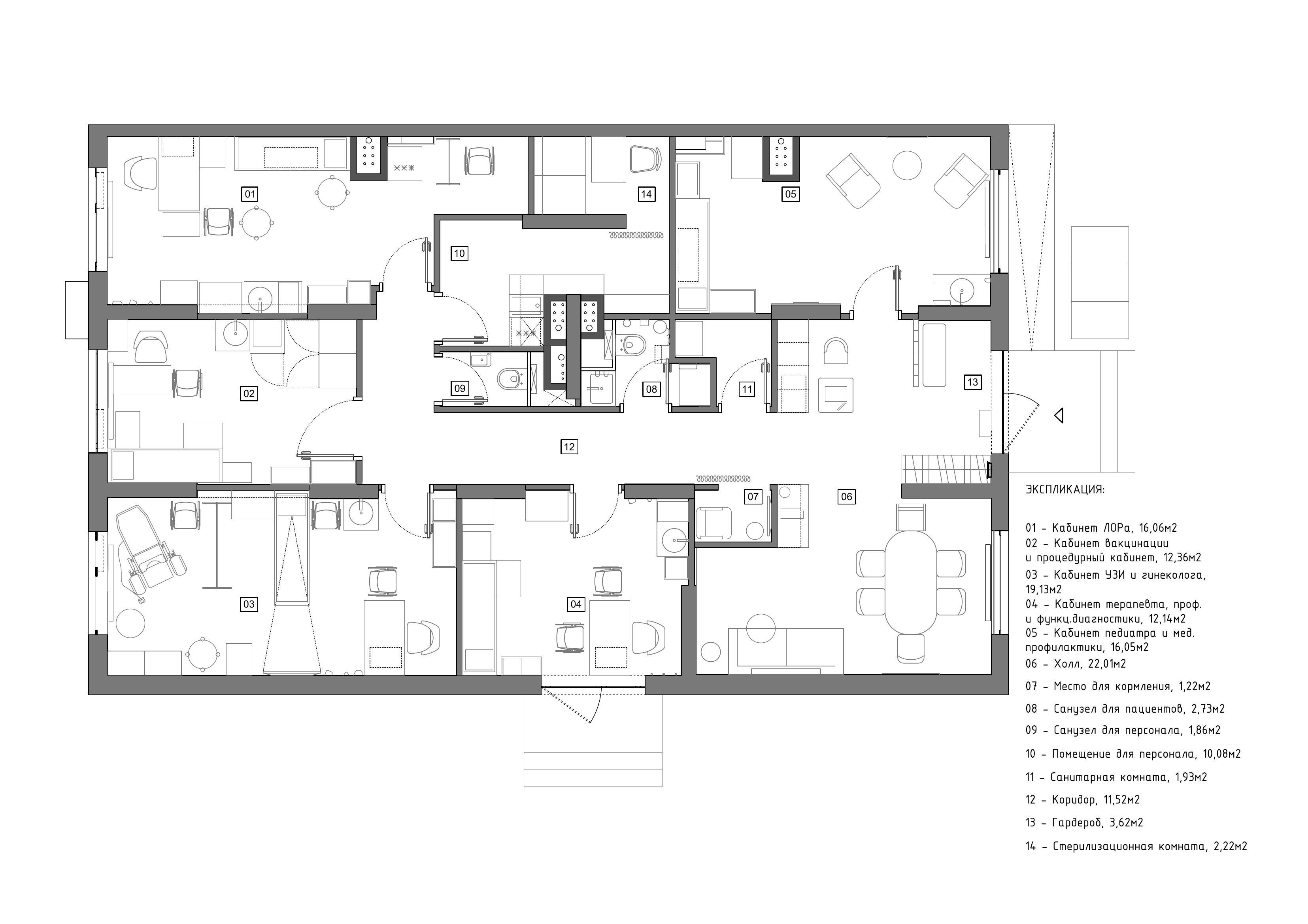
Пожелания заказчиков были достаточно необычны. Вместо привычной зоны ожидания пациентов сделали общую гостиную со столом и креслами. Здесь можно пообщаться с другими пациентами, а вечером послушать лекцию

Керамика, Animo. | Источник: Женя Муравьева. Стиль: Катя Шаповалова

Керамика, Animo.

Фото

Женя Муравьева. Стиль: Катя Шаповалова

Картина «Завтра будет лето», Ольга Рикун. | Источник: Женя Муравьева. Стиль: Катя Шаповалова

Картина «Завтра будет лето», Ольга Рикун.

Фото

Женя Муравьева. Стиль: Катя Шаповалова

От привычной стойки администратора тоже ушли — вместо нее при входе стоит легкий барный стол и стул, создающие ощущение, что вас встречает хостес и провожает пройти в отель или ресторан, а не на прием к врачу.

Барный стул, Alot Moscow. | Источник: Женя Муравьева. Стиль: Катя Шаповалова

Барный стул, Alot Moscow.

Фото

Женя Муравьева. Стиль: Катя Шаповалова

Источник: Женя Муравьева. Стиль: Катя Шаповалова
Фото

Женя Муравьева. Стиль: Катя Шаповалова

В кабинетах все тоже очень спокойно, не «по-больничному». Здесь нет ни мониторов, ни громоздких принтеров — так врач может пообщаться с пациентом без траты времени на гаджеты, а протокол осмотра можно распечатать в общей зоне у администратора, где мы добавили антресольное хранение для документов и бумаг.

Ковер, Kover.ru. | Источник: Женя Муравьева. Стиль: Катя Шаповалова

Ковер, Kover.ru.

Фото

Женя Муравьева. Стиль: Катя Шаповалова

Источник: Женя Муравьева. Стиль: Катя Шаповалова
Фото

Женя Муравьева. Стиль: Катя Шаповалова

Здесь три главных цвета — нежно-голубой, серый и теплый терракотовый. Мы переосмыслили классический оттенок «врачебного» бирюзового цвета, сделали его теплее. Важную роль играют и теплые оттенки дерева — они создают атмосферу доверия.

Источник: Женя Муравьева. Стиль: Катя Шаповалова
Фото

Женя Муравьева. Стиль: Катя Шаповалова

Пуф, Alot Moscow. Ковер, Kover.ru. Картина «Оранжевое небо», Ольга Рикун | Источник: Женя Муравьева. Стиль: Катя Шаповалова

Пуф, Alot Moscow. Ковер, Kover.ru. Картина «Оранжевое небо», Ольга Рикун

Фото

Женя Муравьева. Стиль: Катя Шаповалова

Источник: Женя Муравьева. Стиль: Катя Шаповалова
Фото

Женя Муравьева. Стиль: Катя Шаповалова

Для маленьких пациентов мы предусмотрели меловую поверхность в общей зоне, где можно рисовать, а также комфортное место для кормления и все необходимое для детских расходников в санузле.

Постер, Ольга Берез. | Источник: Женя Муравьева. Стиль: Катя Шаповалова

Постер, Ольга Берез.

Фото

Женя Муравьева. Стиль: Катя Шаповалова

Источник: Женя Муравьева. Стиль: Катя Шаповалова
Фото

Женя Муравьева. Стиль: Катя Шаповалова

Постер, SoModernArt, Кира Шаева. | Источник: Женя Муравьева. Стиль: Катя Шаповалова

Постер, SoModernArt, Кира Шаева.

Фото

Женя Муравьева. Стиль: Катя Шаповалова

Контакты: архитектор и основатель бюро Archistories Кира Шаева

Архитектор и основатель бюро Archistories Кира Шаева. | Источник: Женя Муравьева. Стиль: Катя Шаповалова

Архитектор и основатель бюро Archistories Кира Шаева.

Фото

Женя Муравьева. Стиль: Катя Шаповалова