Светильники, Gubi. | Источник: Ольга Шангина. Стиль: Светлана Носова

Светильники, Gubi.

Фото

Ольга Шангина. Стиль: Светлана Носова

Заказчик — из Владикавказа, но живет и работает в Москве, так что здесь он будет останавливаться во время поездок. Мы старались создать ощущение, будто квартира давно обжита — в этом нам помогли винтажные элементы: советский потолочный светильник в санузле, итальянские бра по обе стороны от кровати. В этом интерьере много выполненной на заказ мебели — из готовых здесь только диван, обеденные стулья и текстиль.

У квартиры непростая структура — здесь у каждой квартиры в новостройках свой отопительный котел, так что расположение техблока в гостиной поставило перед нами непростую задачу. Другой проблемой стал монолитный несущий столб практически напротив входа. Перенести его было нельзя, поэтому мы не только вписали его в коридор, но и обрамили вход, к которому он примыкает, акцентными красными доборами.

Источник: Ольга Шангина. Стиль: Светлана Носова
Фото

Ольга Шангина. Стиль: Светлана Носова

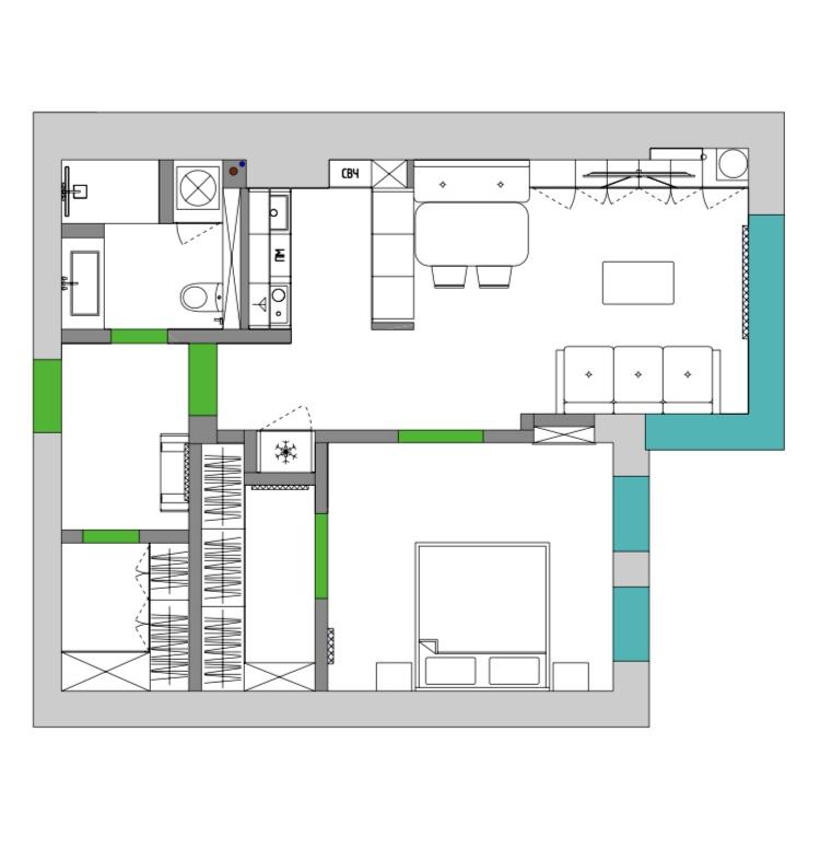
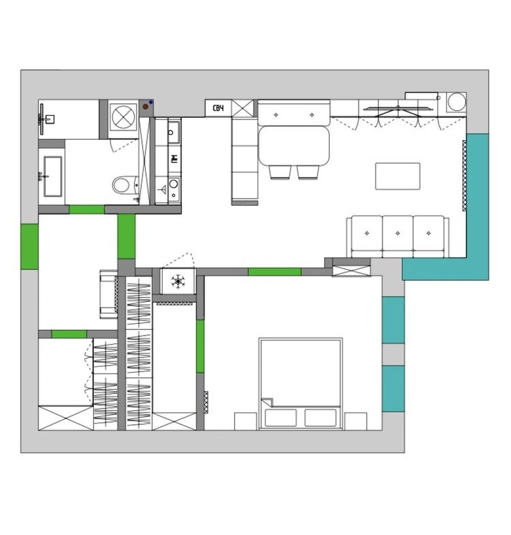
На ограниченной площади в 63 кв. м нам удалось разместить кухню-гостиную, спальню, две гардеробных и санузел. У входа есть хозблок для обуви, верхней одежды и шкафа с бытовой техникой.

Диван, Divan.ru. Ковер, La Redoute. | Источник: Ольга Шангина. Стиль: Светлана Носова

Диван, Divan.ru. Ковер, La Redoute.

Фото

Ольга Шангина. Стиль: Светлана Носова

Источник: Ольга Шангина. Стиль: Светлана Носова
Фото

Ольга Шангина. Стиль: Светлана Носова

Кухня получилась необычной. На контрасте с молочно-белым цветом стен здесь выделяются выразительные верхние секции из шпона дуба под зеленым маслом. Даже ручки для шкафов создавались по авторскому эскизу в местной мастерской. Учитывая ограниченный бюджет, нижние модули мы сделали из более бюджетного ДСП, но благодаря цветному акценту кухня выглядит эффектно.

Источник: Ольга Шангина. Стиль: Светлана Носова
Фото

Ольга Шангина. Стиль: Светлана Носова

Источник: Ольга Шангина. Стиль: Светлана Носова
Фото

Ольга Шангина. Стиль: Светлана Носова

Источник: Ольга Шангина. Стиль: Светлана Носова
Фото

Ольга Шангина. Стиль: Светлана Носова

Источник: Ольга Шангина. Стиль: Светлана Носова
Фото

Ольга Шангина. Стиль: Светлана Носова

Теплую природную палитру продолжает необычный элемент — холодильник у прохода, скрытый за красивым фасадом в шпоне клена «птичий глаз». Деревянный фасад намеренно продлен во всю стену, чтобы он сочетался с увеличенным проходом в прихожую.

Источник: Ольга Шангина. Стиль: Светлана Носова
Фото

Ольга Шангина. Стиль: Светлана Носова

В спальне тоже заметна теплая фактура шпона: над кроватью в спальне висит рамка для зеркала из того же материала, выполненная на заказ.

Ковры, текстиль, La Redoute.  | Источник: Ольга Шангина. Стиль: Светлана Носова

Ковры, текстиль, La Redoute.

Фото

Ольга Шангина. Стиль: Светлана Носова

Винтажные бра, Resellect. | Источник: Ольга Шангина. Стиль: Светлана Носова

Винтажные бра, Resellect.

Фото

Ольга Шангина. Стиль: Светлана Носова

Чтобы добиться эргономичного зонирования, я нарастила стену между спальней и гостиной, а в появившуюся нишу встроила акцентный красный стеллаж и внутренний блок кондиционера.

Источник: Ольга Шангина. Стиль: Светлана Носова
Фото

Ольга Шангина. Стиль: Светлана Носова

Источник: Ольга Шангина. Стиль: Светлана Носова
Фото

Ольга Шангина. Стиль: Светлана Носова

Источник: Ольга Шангина. Стиль: Светлана Носова
Фото

Ольга Шангина. Стиль: Светлана Носова

Оригинальной деталью ванной оказалась небольшая картина с Лениным — ее цвета неожиданно удачно вписались в колористическую карту проекта. Еще здесь обустроен глубокий вентилируемый шкаф, в котором спрятаны стиральная и сушильная машины.

Источник: Ольга Шангина. Стиль: Светлана Носова
Фото

Ольга Шангина. Стиль: Светлана Носова

Плитка, 41zero42, Wow. | Источник: Ольга Шангина. Стиль: Светлана Носова

Плитка, 41zero42, Wow.

Фото

Ольга Шангина. Стиль: Светлана Носова

Автор проекта: дизайнер Фатима Березова, т. +7 (960) 403-90-09, berezovafatima@gmail.com

План квартиры 63 кв. м. Проект Фатимы Березовой.

План квартиры 63 кв. м. Проект Фатимы Березовой.