Обеденный стол из травертина изготовлен по эскизам дизайнера. Светильник, 101 Copenhagen. | Источник: Лиза Кулененок. Стиль: Алена Верш

Обеденный стол из травертина изготовлен по эскизам дизайнера. Светильник, 101 Copenhagen.

Фото

Лиза Кулененок. Стиль: Алена Верш

Заказчики — молодая успешная пара, живут загородом и периодически бывают в Минске. Единственное четкое пожелание — светлая квартира с ощущением простора. Они не хотели визуального шума, перегруженности. Полностью предоставили мне творческую свободу, поэтому здесь много авторской мебели и предметного дизайна: ассиметричный диван, журнальный столик, кровать из нержавейки, умывальник из травертина, ассиметричный обеденный стол. Такая необычная геометрия выглядит смело на фоне спокойной цветовой гаммы с мягкими белыми и светло-серыми оттенками. А главное — здесь совсем нет черного цвета и глянца, только матовые поверхности.

Источник: Лиза Кулененок. Стиль: Алена Верш
Фото

Лиза Кулененок. Стиль: Алена Верш

Диван и журнальный столик изготовлены по эскизам дизайнера. | Источник: Лиза Кулененок. Стиль: Алена Верш

Диван и журнальный столик изготовлены по эскизам дизайнера.

Фото

Лиза Кулененок. Стиль: Алена Верш

Планировка получилась достаточно открытой: зона кухни, столовая и гостиная объединены и зонируются лишь мебелью — без лишних перегородок. Самым лучшим решением было объединить лоджию с основной зоной, так здесь значительно свободнее и воздушнее. К тому же, получилось устроить полноценную гостевую комнату и спальню.

Хозяева практически не готовят, поэтому кухня здесь лаконичная: без верхних шкафов и даже без духовки. Но при этом здесь достаточно хранения, чтобы не было беспорядка. Зато семья любит принимать гостей, так что стол мы сделали большой. Дополнили его классическими венскими стульями, окрасив их в два цвета.

Панно, Влад Кудин. Кухня и вся корпусная мебель выполнены по эскизам дизайнера.  | Источник: Лиза Кулененок. Стиль: Алена Верш

Панно, Влад Кудин. Кухня и вся корпусная мебель выполнены по эскизам дизайнера.

Фото

Лиза Кулененок. Стиль: Алена Верш

Источник: Лиза Кулененок. Стиль: Алена Верш
Фото

Лиза Кулененок. Стиль: Алена Верш

Вообще, скрытых систем хранения здесь много — они спрятаны в ниши и выполнены в той же отделке, что стены. Штукатурка нанесена с минимальной фактурой, но этого достаточно, чтобы создавать мягкие переливы. В таких интерьерах чрезмерность не нужна. Но главное, что при всей лаконичности интерьер получился интересным, и в нем нашлось место искусству. Картину «Вячэра» художница Лена Гиль специально написала для этого интерьера по моей просьбе. Ее дополняют и мои собственные эксперименты с формой и фактурой — объекты из металла.

Картина «Вячэра», Лена Гиль. Скульптура на стеллаже, Максим Макаревич. | Источник: Лиза Кулененок. Стиль: Алена Верш

Картина «Вячэра», Лена Гиль. Скульптура на стеллаже, Максим Макаревич.

Фото

Лиза Кулененок. Стиль: Алена Верш

Источник: Лиза Кулененок. Стиль: Алена Верш
Фото

Лиза Кулененок. Стиль: Алена Верш

Стул, Илья Козак | Источник: Лиза Кулененок. Стиль: Алена Верш

Стул, Илья Козак

Фото

Лиза Кулененок. Стиль: Алена Верш

Источник: Лиза Кулененок. Стиль: Алена Верш
Фото

Лиза Кулененок. Стиль: Алена Верш

В спальне — кровать из нержавеющей стали. Материал сам по себе акцентен, поэтому форму я решил сделать простой. За ней, конечно, стоит тщательная работа с эргономикой, выверена каждая пропорция, чтобы было приятно садиться и вставать, ведь металл — материал холодный.

Кровать изготовлена по эскизам дизайнера. | Источник: Лиза Кулененок. Стиль: Алена Верш

Кровать изготовлена по эскизам дизайнера.

Фото

Лиза Кулененок. Стиль: Алена Верш

Ванная получилась такой же целостной: мне удалось сделать здесь душевую без порога. Выделяется здесь и умывальник — он даже выиграл местный конкурс предметного дизайна и был отмечен на сайте iSaloni. В ванной, как и во всей квартире, я использовал травертин точечно, для сохранения легкости, хотя заказчики поначалу предлагали использовать его по максимуму — сами они, кстати, занимаются натуральным камнем.

Умывальник из травертина изготовлен по эскизам дизайнера. | Источник: Лиза Кулененок. Стиль: Алена Верш

Умывальник из травертина изготовлен по эскизам дизайнера.

Фото

Лиза Кулененок. Стиль: Алена Верш

Источник: Лиза Кулененок. Стиль: Алена Верш
Фото

Лиза Кулененок. Стиль: Алена Верш

Автор проекта: дизайнер Влад Кудин, https://kudinvlad.com/

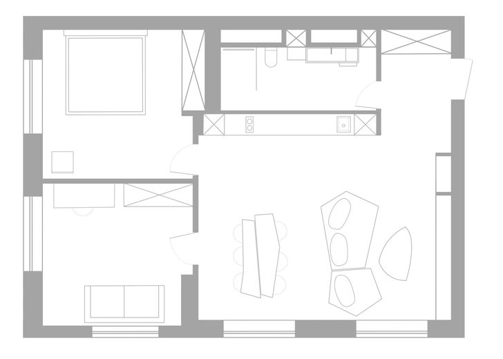
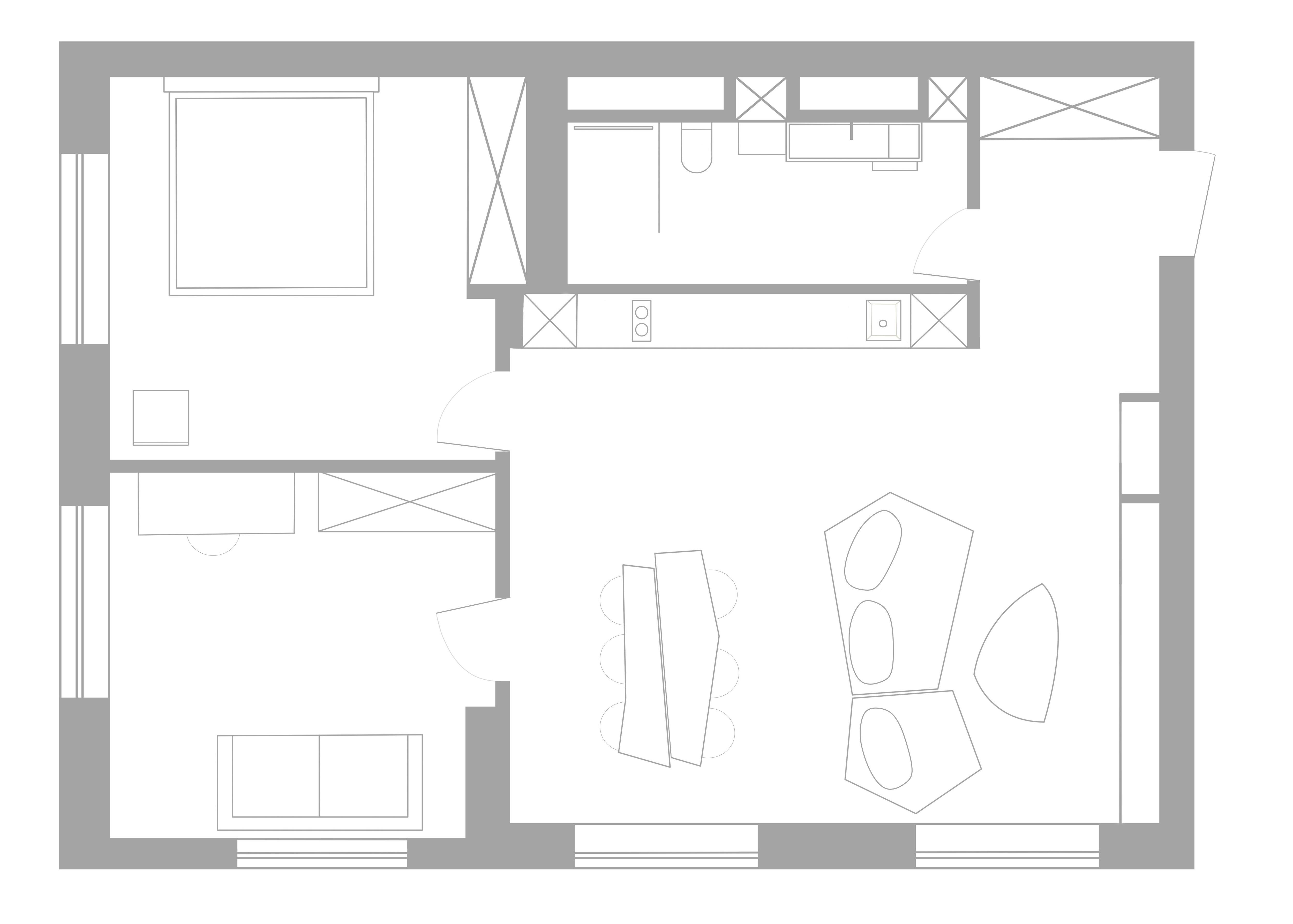
План квартиры 70 кв. м. Проект Влада Кудина

План квартиры 70 кв. м. Проект Влада Кудина

Дизайнер Влад Кудин | Источник: Лиза Кулененок. Стиль: Алена Верш

Дизайнер Влад Кудин

Фото

Лиза Кулененок. Стиль: Алена Верш