Стол, Tony Roaks. Стулья, SK Design. Ручки из латуни, Maru studio. Вазы, Izzi Decor. | Источник: Лиза Гуровская. Стиль: Ирина Темнова

Стол, Tony Roaks. Стулья, SK Design. Ручки из латуни, Maru studio. Вазы, Izzi Decor.

Фото

Лиза Гуровская. Стиль: Ирина Темнова

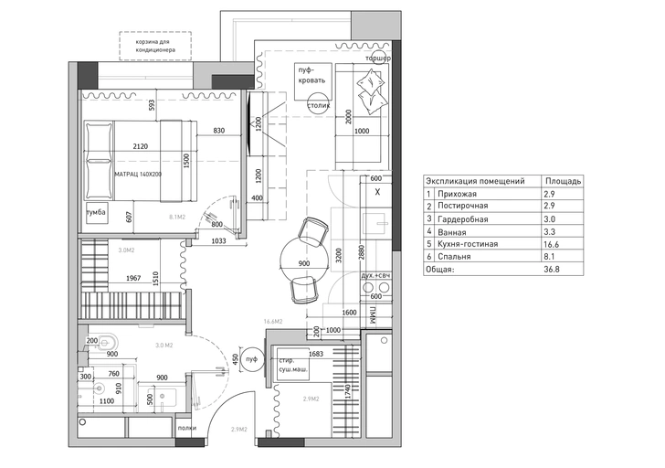
Стояла супер-задача: сделать дом для мамы, которую я очень люблю. Хотелось создать душевное, наполненное смыслами пространство, где она отдыхает и набирается сил после работы. На 37 м² мы разместили две гардеробные, санузел, отдельную спальню и достаточно просторную кухню-гостиную.

В этом интерьере нет гонки за трендами, главное — он получился очень спокойным и теплым. Городская квартира по атмосфере напоминает загородный дом: деревянная кухня, тактильные ткани, теплый свет, открытые полки с красивой посудой… Мама любит, когда красивые вазы радуют глаз, а не прячутся за глухими фасадами. Поэтому хранение продумали умеренно — есть и открытые, и закрытые системы. Смотрится это очень ритмично: на кухне шкафы с деревянными и стеклянными дверцами чередуются с открытыми полками, рядом — зеркальная арочная ниша с подсветкой, зрительно расширяющая пространство.

Источник: Лиза Гуровская. Стиль: Ирина Темнова
Фото

Лиза Гуровская. Стиль: Ирина Темнова

Источник: Лиза Гуровская. Стиль: Ирина Темнова
Фото

Лиза Гуровская. Стиль: Ирина Темнова

Освещение, Arlight. | Источник: Лиза Гуровская. Стиль: Ирина Темнова

Освещение, Arlight.

Фото

Лиза Гуровская. Стиль: Ирина Темнова

Маршруты понятные, предметов ровно столько, сколько нужно для жизни, декор — в меру и осознанно. Гости сразу это замечают: задерживаются дольше, рассматривают полки, улыбаются мелочам.

Диван, Divan.ru. Интерьерная краска, H&H. Ковер, Dovlet House. Шторы и чехол для пуфа, juli_decorator. | Источник: Лиза Гуровская. Стиль: Ирина Темнова

Диван, Divan.ru. Интерьерная краска, H&H. Ковер, Dovlet House. Шторы и чехол для пуфа, juli_decorator.

Фото

Лиза Гуровская. Стиль: Ирина Темнова

Картины, Artpolushkina. | Источник: Лиза Гуровская. Стиль: Ирина Темнова

Картины, Artpolushkina.

Фото

Лиза Гуровская. Стиль: Ирина Темнова

Картина, troyanskayaartist. | Источник: Лиза Гуровская. Стиль: Ирина Темнова

Картина, troyanskayaartist.

Фото

Лиза Гуровская. Стиль: Ирина Темнова

Планировку застройщика подправили — никогда ее не оставляю, потому что обычно это универсальное решение, а я стараюсь сделать персональное, продумать все мелочи. Квартира продавалась как однокомнатная, с одной гардеробной. Я предложила сделать две комнаты, в одну из них даже уместилась стиральная и сушильная машины. Это хорошее решение — место осталось, не тесно, порядок в голове.

Мне очень нравятся яркие оранжевые шторы с бахромой, которые висят в гардеробных вместо дверей — они создали эффект театральности, чувство какого-то праздника. К тому же, это довольно практично.

Источник: Лиза Гуровская. Стиль: Ирина Темнова
Фото

Лиза Гуровская. Стиль: Ирина Темнова

Источник: Лиза Гуровская. Стиль: Ирина Темнова
Источник: Лиза Гуровская. Стиль: Ирина Темнова
Фото

Лиза Гуровская. Стиль: Ирина Темнова

Спальню я бы назвала такой антистресс-коробочкой — она компактная и уютная, с оранжевыми акцентами. Засыпаешь здесь просто моментально! Это место для хорошего отдыха, так что здесь специально нет телевизора, только кровать и прикроватная тумба. Мягкие скругленные формы, нежный текстиль, единый цвет стен и потолка — все это делает пространство обволакивающим.

Бра, Artamonova.design. Лампа, Bongo Ceramics. Подушки, Izzi Decor. Покрывало, juli_decorator. | Источник: Лиза Гуровская. Стиль: Ирина Темнова

Бра, Artamonova.design. Лампа, Bongo Ceramics. Подушки, Izzi Decor. Покрывало, juli_decorator.

Фото

Лиза Гуровская. Стиль: Ирина Темнова

А вот самый необычный, интересный предмет в этом интерьере — зеркало в санузле ручной работы, выполненное по авторской технике, напоминающей папье-маше.

Зеркало, Colotista Art. | Источник: Лиза Гуровская. Стиль: Ирина Темнова

Зеркало, Colotista Art.

Фото

Лиза Гуровская. Стиль: Ирина Темнова

Для меня это самый ценный проект — интерьер, сделанный с заботой и любовью для мамы. Это лучшее, что я могла для нее сделать.

Дизайнер Лина Князева.  | Источник: Лиза Гуровская. Стиль: Ирина Темнова

Дизайнер Лина Князева.

Фото

Лиза Гуровская. Стиль: Ирина Темнова

Автор проекта: дизайнер Лина Князева, студия Knyazeva Design, www.linaknyazeva.ru, https://t.me/linaknyazeva, https://vk.com/clips/knyazevadesignstudio, https://dzen.ru/id/63b87ee4bc76f64645d24a90

План квартиры 37 м². Проект Лины Князевой.

План квартиры 37 м². Проект Лины Князевой.