Вся встроенная мебель изготовлена по эскизам дизайнера местным производителем. | Источник: Катерина Самойлович. Стиль: Ольга Роговенко

Вся встроенная мебель изготовлена по эскизам дизайнера местным производителем.

Фото

Катерина Самойлович. Стиль: Ольга Роговенко

Хозяйка квартиры — певица, много времени она проводит в путешествиях и часто живет в отелях, поэтому такую же атмосферу она хотела создать и у себя дома. Мы выбрали светлую нейтральную базу из оттенков бежевого и серо-молочного и добавили насыщенные акценты — синий и терракоту. Картины и постеры белорусской художницы задали настроение и характер всему интерьеру — в гостиной они сочетаются с акцентным синим ковром, декором и терракотовыми барными стульями.

Барные стулья Riviera, Emu. Постер, Kate Shi. Вазы, EDG Enzo De Gasperi. | Источник: Катерина Самойлович. Стиль: Ольга Роговенко

Барные стулья Riviera, Emu. Постер, Kate Shi. Вазы, EDG Enzo De Gasperi.

Фото

Катерина Самойлович. Стиль: Ольга Роговенко

Самой сложной задачей для нас было выполнить главное желание заказчицы — разместить на площади 35 м2 две гардеробные — на моей практике такое впервые! Зато не пришлось загромождать квартиру шкафами — так в квартире получилось больше воздуха. Даже кажется, что она больше, чем есть на самом деле — это отмечают все гости, которые сюда попадают. Благодаря этому пространство прекрасно подходит для съемок, что важно хозяйке дома — она ведет свой блог.

Картина, Kate Shi. Ковер Admiral Blue, Carpet Decor. Столики, Tomasella. Пуф Porada Smile, Tomasella. Подушки, Comme Home. Шторы, «Дом Декора». | Источник: Катерина Самойлович. Стиль: Ольга Роговенко

Картина, Kate Shi. Ковер Admiral Blue, Carpet Decor. Столики, Tomasella. Пуф Porada Smile, Tomasella. Подушки, Comme Home. Шторы, «Дом Декора».

Фото

Катерина Самойлович. Стиль: Ольга Роговенко

Чтобы квартира казалась просторнее, были использованы большие зеркала и двери во всю стену

Источник: Катерина Самойлович. Стиль: Ольга Роговенко
Фото

Катерина Самойлович. Стиль: Ольга Роговенко

Зона кухни довольно незаметно встроена в гостиную — было важно, чтобы она не считывалась как кухня. Она получилась небольшой, без верхних шкафов, но в то же время очень вместительной. Нам удалось изящно спрятать холодильник — никто из гостей не может найти его с первого раза! Это получилось не только благодаря высоким кухонным фасадам, выкрашенным в цвет стен — само его «встроенное» расположение рядом со стеллажом делает его незаметным.

Источник: Катерина Самойлович. Стиль: Ольга Роговенко
Фото

Катерина Самойлович. Стиль: Ольга Роговенко

Источник: Катерина Самойлович. Стиль: Ольга Роговенко
Фото

Катерина Самойлович. Стиль: Ольга Роговенко

Спальню от гостиной отделяют раздвижные двери — когда дома нет гостей, их можно оставить открытыми, объединив пространство. В этой комнате главный акцентный цвет — горчично-желтый, который присутствует на пледе, в декоративной подушке, на постере и тонкими линиями на обоях. Здесь также есть скрытая дверь в гардеробную — она полностью сливается со стеной, на ней продолжаются линии молдинга и плинтуса.

Постельное белье, Mon Son. Декоративная подушка, Comme Home. | Источник: Катерина Самойлович. Стиль: Ольга Роговенко

Постельное белье, Mon Son. Декоративная подушка, Comme Home.

Фото

Катерина Самойлович. Стиль: Ольга Роговенко

При подборе декора мы учитывали вид за окном — цветовую гамму и архитектуру, геометрию высоток. Хотелось, чтобы интерьер как бы перетекал в пейзаж за панорамными окнами.

Источник: Катерина Самойлович. Стиль: Ольга Роговенко
Фото

Катерина Самойлович. Стиль: Ольга Роговенко

Источник: Катерина Самойлович. Стиль: Ольга Роговенко
Фото

Катерина Самойлович. Стиль: Ольга Роговенко

Автор проекта: дизайнер Анна Римша

Источник: Катерина Самойлович. Стиль: Ольга Роговенко
Фото

Катерина Самойлович. Стиль: Ольга Роговенко

Источник: Катерина Самойлович. Стиль: Ольга Роговенко
Фото

Катерина Самойлович. Стиль: Ольга Роговенко

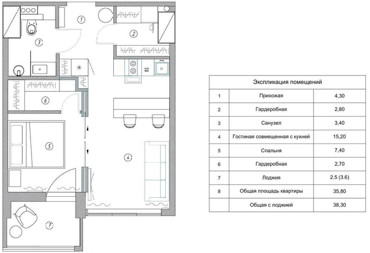
План квартиры 35 м². Проект Анны Римши.

План квартиры 35 м². Проект Анны Римши.